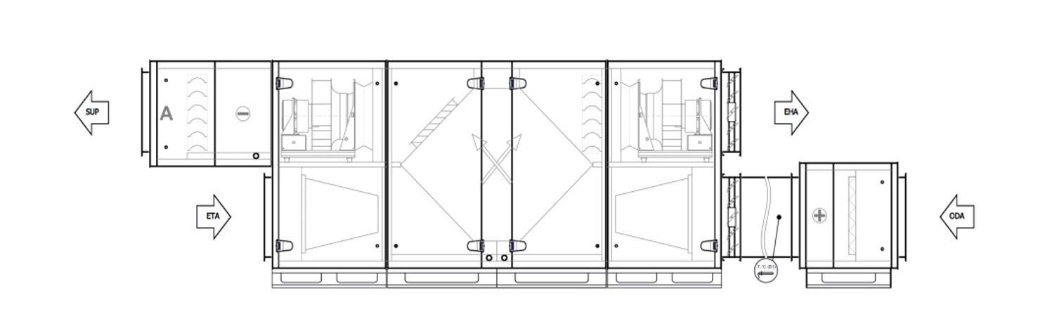
Dans cette SAÉ, nous avons travaillé sur une centrale de traitement d’air (CTA) existante, afin de vérifier si ses composants étaient adaptés aux besoins réels de notre projet. Pour ensuite dimensionner un réseaux de ventilation 

La première étape a consisté à réaliser une étude détaillée de trois éléments principaux de la CTA :

  • Le circulateur (pompe de circulation)

  • Le ventilateur

  • La batterie froide (échangeur pour le refroidissement de l’air)

Après comparaison avec les caractéristiques des équipements installés, nous avons constaté que tous les composants étaient sous-dimensionnés.
Ils ne permettaient pas d'assurer les débits d’air ni la puissance de traitement suffisants pour garantir le confort et la performance du système.

Nous avons donc dû :

  • Choisir de nouveaux équipements, mieux adaptés (CTA plus puissante, ventilateur de plus grand débit, batterie froide plus performante, etc.)

  • Recorriger les calculs avec les nouvelles références fabricants

Une fois les bons équipements choisis, nous avons modélisé l’intégralité du réseau de ventilation sur Revit :

  • Traçage du réseau principal de gaines (soufflage et extraction  et VMC)

  • Placement des bouches de soufflage et d’extraction dans chaque local, en respectant les normes et les besoins en renouvellement d’air

  • Connexion de chaque bouche au réseau aéraulique

  • Vérification des sections de gaines et  des débits par pièce

PLAN 3D-2D 

Créez votre propre site internet avec Webador