Dans le cadre de cette SAÉ, nous avons travaillé sur un réseau aéraulique, et plus précisément sur le dimensionnement et le repérage des gaines de ventilation à partir des plans du bâtiment.

 Étapes du projet :

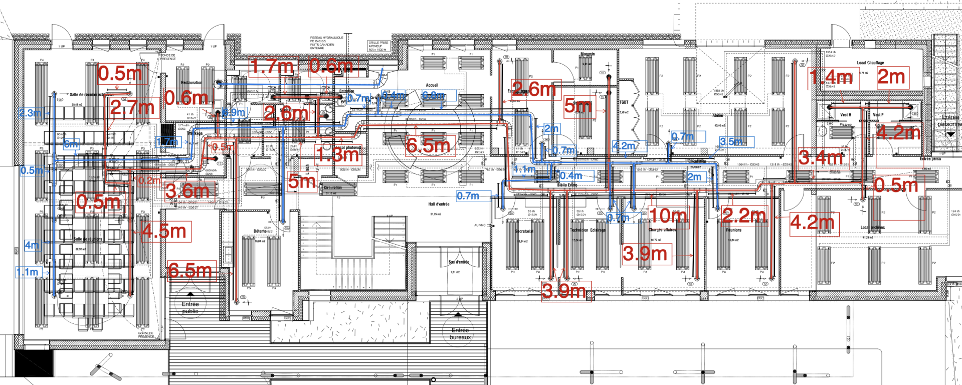
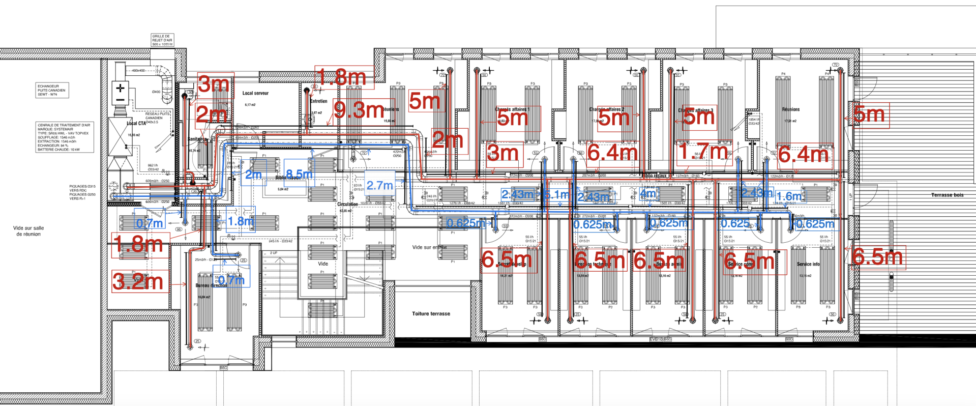
  1. Analyse des plans du bâtiment

    • Lecture des plans d’architecture pour repérer les zones à ventiler.

    • Identification des emplacements des bouches de soufflage et d’extraction.

  2. Traçage des gaines sur plan

    • Dessin des parcours des gaines principales et secondaires sur le plan papier ou numérique.

    • Respect des contraintes techniques : longueurs, hauteurs sous plafond, obstacles, etc.

  3. Calcul des longueurs réelles

    • Mesure précise de chaque tronçon de gaine à l’échelle.

    • Relevé des longueurs totales nécessaires pour chaque type de gaine (soufflage, extraction).

RDC

1ER Étage

Ensuite nous avons réalisé un DPGF (Décomposition du Prix Global et Forfaitaire) très détaillé, couvrant l’ensemble du réseau aéraulique d’un bâtiment.


    Éléments inclus dans le DPGF :

  • Gaines circulaires et rectangulaires

    • Classées par diamètre, type et longueur

    • Découpées par segments selon les plans

  • Bouches d’extraction et de soufflage

    • Référencées pièce par pièce

    • Incluses avec débits associés et caractéristiques

  • Accessoires du réseau :

    • Raccords entre gaines (piquages, tés, réductions…)

    • Coudes à 45°/90°, manchons, brides, colliers de fixation

    • Trappes de visite et supports de suspension

  • Organes de sécurité :

    • Registres coupe-feu

    • Registres de réglage

  • Éléments spécifiques :

    • Raccordements à la CTA

    • Silencieux aérauliques pour réduction du bruit

    • Isolation des gaines (selon les zones)

  • Unités de mesure, quantités, prix unitaires et sous-totaux
    ➤ Calcul précis du coût global du lot ventilation

À la suite de la rédaction du DPGF et de l’étude complète du lot ventilation, nous avons également réalisé le DOE (Dossier des Ouvrages Exécutés), un document indispensable à la réception finale du chantier.

Le DOE regroupe l’ensemble des documents techniques et administratifs permettant :

  • La traçabilité de l’installation

  • La mise en service

  • Et la future maintenance des équipements installés

Créez votre propre site internet avec Webador